NRW:Arbeitsgruppe/Events/2013 LPT Bewerbung Pulheim/Pläne

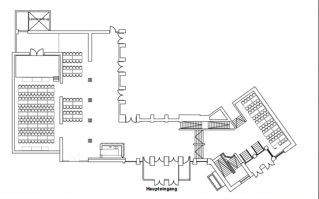
Grosser Saal

 

bei Ausrüstung mit Tischen 630 Plätze

 

Bei Ausrüstung mit Tischen können auf der oberen Plattform 206 Leute untergebracht werden bei Stühlen sind es nur 179

Bei Ausrüstung mit Stühlen 596 Personen

 

Die Hälfte der Bühne könnte für die Technik abgetrennt werden. hinter der Bühne sind noch einige Räume (Lager, Technik)

auf dem Plan links unten befindet sich im 1. OG ein abgeschlossener Technikraum zur Steurung Ton und Licht
von hier aus könnte auch gefilmt und gestream werden

Kleiner Saal


Beim Rheinlandtag standen die Tische wie auf dem Foto


 


der Saal könnte mit Stellwänden getrennt werden. die eine Hälfte Orga, die andere Wahllokal.

vor dem Saal Akkreditierung .

eine Küche zum Kochen befindet sich über dem kleinen Saal

 

links neben dem Hauptenigang befindet sich eine Theke, die zusätlich benutzt werden könnte
die Theke könnte aber auch zur Akkreditierung der Presse genutzt werden

rechts aussen könnte die Kinderbetreuund stattfinden

die Garderobe befindet sich rechts die Treppe runter, dort befinden sich auch die normalen Toiletten in ausreichender Zahl. Behindertentoiletten sind ebenerdig

Bistro

 

 

alternativ könnte im hinteren Teil des Bistros die Kinderbetreuung stattfinden

Seminarraum

 

 

alternativ könnte die Presse Akreditierung auch hier stattfinden