Die Daten werden täglich aktualisiert.
Bundesparteitag 2010.1/Bewerbung Augsburg
Bundesparteitag 2010 Planungsseite des BzV Schwaben
Voranmeldung
Hier könnt ihr euch eintragen/voranmelden --> Anmeldung
Konzeptvorstellung
Ablaufvorstellung
Für den Bundesparteitag 2010 der Piratenpartei Deutschland haben wir uns etwas ganz besonderes ausgedacht. Viele von uns haben im Wahlkampf die Sätze geprägt: "Wir sind eine Partei zum anfassen." oder "Bei uns kann jeder mitmachen, denn Politik lebt von der Masse". Damit diese Sätze nicht wie leere Worte klingen, sind wir immer wieder angehalten dies zu zeigen und zu leben. Der BPT ist eines dieser Events, an denen wir die einzigartige Möglichkeit haben, dies auf eindrucksvolle Weise, durch die hohe Presseaufmerksamkeit einer breiteren Öffentlichkeit zu zeigen und ganz wichtig vor zu leben.
Aus diesem Grunde hat sich die Augsburger Gruppe des BzV Schwaben in einer Arbeitsgruppe zusammengefunden, um unter den Arbeitstitel "Politisches Piraten Dorf" einen Vorschlag für den BPT2010 auszuarbeiten.
Was ist also geplant?
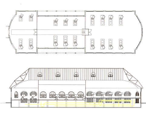
Auf den Gelände des ehem. Gaswerks Oberhausen(Augsburg) soll für ein Wochenende ein politisches Piratendorf entstehen. Hauptevent dieses Wochenendes ist der Bundesparteitag der Piratenpartei Deutschland, welches im Tagungsraum unter dem großen Scheiben-Gasbehälter (1.500m² Fläche) stattfinden soll. Dieser Raum ermöglicht es eine grosse Anzahl von Mitgliedern unterzubringen, aufgrund seiner Beschaffenheit(er ist rund) ist es weiterhin möglich diesen wie den Deutschen Bundestag einzurichten, ergo perfekt für einen BPT der Piratenpartei (siehe Bilder unter Location). Für zwei hoffentlich wunderschöne Tage wird dieser Raum das Rathaus und politische Zentrum dieses Dorfes.
Ausgestattet mit 700 - 1.200 Plätzen, 2 Leinwänden, Podium und AV-Infrastruktur sowie Netzanbindung vom feinsten sollte es möglich sein auch daheim gebliebene an diesem Großereignis teilhaben zu lassen, sowie mitzureden.
In einem weiteren Gebäude dieses Geländes wird für Verpflegung, Getränke, Kaffee und Mate gesorgt. Bei diesem Gebäude handelt es sich um das alte Apparatehaus (siehe Location). Mit einer Grundfläche von 1.000 m² bietet es die Möglichkeiten einer Cafetarie im künstlerisch/technischem Stile, ausserdem ist dieses Gebäude auch das multimediale Kommunikationszentrum des Dorfs.
Hier hat die Presse die Möglichkeit sich in einem separaten Teil niederzulassen und ihre Artikel/Bericht etc. niederzuschreiben und in die ganze Welt zu versenden.
Des Weiteren bietet dieses Gebäude durch ein erhobenes Podium eine optimale Location für Pressekonferenzen.
Das verwaltungstechnische Herz unseres Dorfes befindet sich direkt am grossen Eingangstor des Gaswerkes mit einem 100 m² großen Raum, welcher für die Akkreditierung und Information der anreisenden Piraten/Besucher eingerichtet wird.
Auch wird es das Büro des Chief of Boat für dieses Wochenende sein und somit zentrale Koordinatinszentrale.
Für die Rahmenveranstaltungen "Array der Fakten" und "Piratenpartei informiert" haben wir das Ofenhaus vorgesehen, welches mit seinen 820m² und der beeindruckenden Atmosphäre bestens für diesen Teil der Veranstaltung geeignet ist.
Auch für den Abend/Nacht ist einiges in unserem Dorf geplant: unter anderem im Reinigerhaus, welches mit 3.200 m² Nutzfläche über 2 Floors die perfekte Location für eine der besten Underground Partys mit lokalen oder Piraten DJ's bietet Open Music und co. sozusagen.
So dies ist erstmal das grobe Konzept, wir hoffen es gefällt euch.
Details findet ihr weiter unten.
Termin
24./25. April
Location
Bilder
Map der Location Gaswerk:
1 -> Torhaus (Akkreditierung / Information / Veranstaltungskoordination)
Dieses Gebäude befindet sich direkt am Eingang zum Gelände und bietet somit die beste Location für die Akkreditierung/Information der Piraten und Besucher. Auch ist es gut geeignet die anreisende Presse zu empfangen und mit Informationen zu versorgen.
2 -> Ofenhaus ("Array der Fakten" / "Piratenpartei informiert")
7 -> Apparatehaus (Cafetaria / Pressezentrum / )
Hinter dieser schmucklosen Bezeichnung Apparatehaus verbirgt sich ein ungewöhnlich formschönes Bauwerk, lang gestreckt und zugleich breit, überwölbt von einer flachen Tonnendecke, hell mit einer großen Fensterfassade nach Süden. Die noch teilweiße vorhandenen Apparate, wirken ins rechte Licht gesetzt wie futuristisches Ambiente.
8 -> Reinigerhaus (Abendlocation 2 Floors )
14 -> Grosser Scheiben-Gasbehälter (Tagungsraum BPT2010)
Lageplan
Verkehrsanbindung
Augsburg ist optimal per Bahn zu erreichen, desweiteren gibt es in der Nähe des Tagungsgeländes zwei B17 Abfarten mit optimaler Autobahnanbindung an die A8. Weitere Informationen wie Fahrpreise, Mitfahrgelegenheiten, etc. folgen in Kürze.
Per Zug
Eine Möglichkeit relativ billig, möglichst schnell und bequem, bietet die Kombination aus Bahncard 25, Sparpreis 50 und das "Freunde nutzen die eigene Bahncard mit".
Mit der Probe-Bahncard 25 + Sparpreis 50 für 5. Personen (ja das funktioniert) mit ICE hin und zurück, mit Sitzplatzreservierung, kommt ihr auf einenen Betrag ca. 80 pro. Person. (+-3 Euro). Ohne Sitzplatzreservierung 7 Euro weniger. (Zu beachten ist dass bei diesen Preis eine Zugbindung besteht)
Geht am Besten an einen Schalter.
Mit dem ICE zum Überblick:
Aus Berlin ca. 6-7 Stunden.
Aus Hamburg auch ca 6-7 Stunden.
Aus Köln 4-5 Stunden.
Aus Hannover 4-5 Studen.
Per Auto
Augsburg liegt direkt an der A8, ist also gut erreichbar (hierfür wird ein Routenplaner empfohlen)
Das Mieten einenes Autos evtl. bei (Sixt, Europcar, Buchbinder) verschafft euch natürlich Flexibilität. Bei einem Mietpreis für dieses Wochenende von ca. 100 Euro pro Auto + zwei Tankfüllungen kommt ihr auf ca. 180 Euro. Wenn ihr mit vier Personen fahrt macht das 45 Euro für Hin- und Rückfahrt.
Mitfahrgelegenheiten
Früh eingestellt findet ihr sicher auch hier was
http://www.mitfahrgelegenheit.de
http://www.mitfahrzentrale.de
Es wird auch dazu noch ein eigenes Piratenportal eingerichtet.
Mitfahrer - Couchingportal
Ein Portal zur Organisation der Mitfahrgelegenheiten, und Couchinggelegenheiten, auf Piratenbasis, ist in der Entstehung und wird in kurzer Zeit online gestellt.
Übernachtung
Wir werden versuchen einen Schlafsack Corner direkt auf dem Gelände anzubieten, desweiteren werden Übernachtungskontigente bei Hostels, günstigen Hotels etc. geblockt. Ausserdem wird es auch eine Website geben auf der Coachsurfer Übernachtungsmöglichkeiten zum BPT finden und reservieren können.
Versorgung (Essen/Trinken etc.)
Hier wird der Veranstalter seine Firmen einsetzen, wobei mit humanen Preisen zu rechnen ist.
Parkplatzsituation
Mitten auf dem Gelände stehen Parkplätze für min. 300 Fahrzeuge zur Verfügung, weitere Parkplätze sind direkt am Gelände zu finden. Auch für mögliche Übertragungswagen der Presse ist genügend Platz direkt auf dem Gelände vorhanden.
Sidevents
Array der Fakten
Kosten geplant bei 300 €uro.
Hier sollen die Hauptthemen der Piratenpartei kreativ und verständlich durch künstlerische Projekte dargestellt werden. Es wird insbesondere auf die Kosten für Bildung, die tägliche Überwachung durch den Staat usw. eingegangen werden. Das Besondere an diesem Projekt ist, dass der Besucher sich keine Vorträge anhören muss, sondern einfach durch Graphiken, Bilder und Gegenüberstellungen auf die wichtigsten Fakten hingewiesen wird, die sich dadurch auch besser einprägen.
Aus diesem Grund sind alle Piraten und Interessierte in Kürze aufgerufen, sich an diesem Projekt zu beteiligen, indem sie Vorschläge an hier bald auftauchende Adresse einsenden. Aufgrund des Geldmangels versteht sich von selbst, dass auch die Ausstellungsstücke dann auch von diesem Piraten erstellt und nach Augsburg gebracht werden müssten. Wir bitten dies zu bedenken.
Piratenpartei informiert
Kosten geplant bei 450 €uro
Neben der politischen Diskussion von Profis, wollen wir auch den Menschen, die sich nicht überall auskennen, ausreichend informieren, dass sie sich auch ein präzises Bild von unserer Arbeit, unseren Zielen und Forderungen machen können. Das Motto ist: Kompliziertes einfach erklärt. Wir holen uns begabte Redner, z.B. aus der Augsburger Universität, die die aktuelle Gesetzeslage, sowie den Sinn, Zweck und die Auswirkungen der Gesetze, gegen die wir vorgehen wollen, einfach und verständlich erklären. Dies wird nicht zu einer Jura-Vorlesung ausarten, jeder, der sich dafür interessiert, soll die komplizierte Materie verstehen, analysieren und einordnen können, ohne sich dabei langweilen zu müssen. Wir bieten auch ausreichend Raum für Diskussion, Fragen und Kommunikation, mit den Rednern sowie natürlich mit den Piraten. Jeder kann mitreden und sich informieren, Pirat wie Nicht-Pirat.
Politischer Honky-Tonk
Das Piratenfieber breitet sich in ganz Deutschland aus. Wir wollen alle mit dem Piratenvirus anstecken, deswegen werden wir bei vielen bekannten Kneipen Augsburgs eine politische Diskussion veranstalten. Andere Parteien werden gezielt dazu animiert, an der Diskussion teilzunehmen. Wir wollen brisante Themen ansprechen, den Teilnehmern unsere Position in einem ungezwungenen Raum erklären und Menschen "von der Straße" dazu animieren, sich zu informieren und sich zu beteiligen. Jeder kann uns ansprechen, uns Fragen stellen, unsere Position mit der von den anderen Parteien vergleichen und sich ein Bild von uns machen.
Abendplanung
Piraten Pool Party
Kosten ca. 500 €uro
Piraten und Wasser- das gehört doch irgendwie zusammen. Wir wollen unsere Gäste mit allen Mitteln davon abhalten, sich zu langweilen. Deswegen wird im Augsburger Stadtbad eine Pool Party geschmießen, die die ganze Nacht geht. Schwimmsachen unbedingt mitnehmen! Auf der Pool Party herrscht definitiv Alkoholverbot, wir wollen mehr und nicht weniger werden.
Politisches Lagerfeuer
Für früh angereiste Piraten und Interessenten wird am Freitagabend, dem Abend vor dem eigentlichen Beginn des Bundesparteitages 2010, auf dem Tagungsgelände ein politisches Lagerfeuer stattfinden. Dies bietet die Möglichkeit, sich näher kennenzulernen und schon am Vorabend über die Themen der nächsten zwei Tage zu diskutieren. Hierbei sind natürlich wieder Besucher, Interessierte sowie Mitglieder anderer Parteien herzlich willkommen.
Budgetplanung
Kosten Location
Die Geländekosten incl. Reinigung, VA-Technik für den Raum unter dem Gaskessel, Bestuhlung und Tische, WC-Container, Zu- und Abluft, Stoffabhängung würde 18.000 €uro Kosten.
Kosten Technik
Technik für den Tagungsraum unter dem Gaskessel ist inkl. in der Miete für Location.
Für die Rahmenveranstaltungen müssten wir als Piraten sehen wie wir dies realisieren und was uns das kostet.
Die Abendplanung wird wiederum ggf. die Agentur übernehmen von der wir das Gelände mieten. Wobei für die Megaparty zwischen dem 24. und 25. April Eintritt verlangt werden müsste, da ja nicht nur Piraten auf dem Gelände sein werden sondern auch viele Besucher. An einer Ermäßigung für Parteimitglieder wird gearbeitet.





